Nowe mieszkania na Oporowie we Wrocławiu
Awicenny, Wrocław, Oporów, Polska
333 309 PLN
szczegóły oferty
adres:
Awicenny, Wrocław, Oporów, Polska
cena:
333 309 PLN
cena za m2:
8 503 PLN
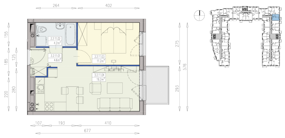
powierzchnia:
39 m2
liczba pokoi:
2
rodzaj oferty:
sprzedaż
rodzaj rynku:
pierwotny
typ nieruchomości:
mieszkania
opis
Inwestycja na styku willowej części Oporowa - mieszkania 2-, 3-, 4-pok. z balkonami lub tarasami - własny fitness, plac zabaw, rowerownie - garaże podziemne, windy, komórki lokatorskie - bliskość jeziorka, dwóch parków, lasku - szeroki wybór nowych mieszkań o powierzchni od 36 do 77 mkw. Wybierając mieszkanie na najwyższym piętrze, zyskasz podwyższone skośne sufity (do 3.8m).
Bez prowizji dla Kupującego oraz podatku od czynności cywilnoprawnych!
Bez prowizji dla Kupującego oraz podatku od czynności cywilnoprawnych!