Domy na Krzykach w zabudowie bliźniaczej
Kobierzycka, Wrocław, Krzyki, Polska
1 535 000 PLN
szczegóły oferty
adres:
Kobierzycka, Wrocław, Krzyki, Polska
cena:
1 535 000 PLN
cena za m2:
8 050 PLN
powierzchnia:
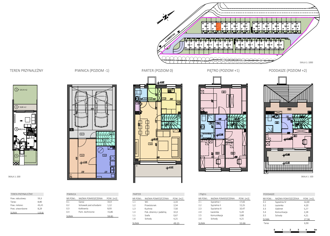
190 m2
liczba pokoi:
6
rodzaj oferty:
sprzedaż
rodzaj rynku:
pierwotny
typ nieruchomości:
domy
opis
Wyjątkowa okolica, komfortowa zabudowa, inwestycja zlokalizowana jest w południowej części Wrocławia. 40 luksusowych domków z garażem podziemnym to idealne miejsce dla tych, którzy poszukiwania wysokiego standardu zaczynają od suburbium Wrocławia. Parter i piętro z możliwością rozbudowania poddasza doskonale wpisują się w potrzeby współczesnych rodzin. Klecina to osiedle zlokalizowane w południowej części Wrocławia, która znana jest między innymi za sprawą rozległych terenów zielonych i imponujących parków. W pobliżu osiedla tuż za malowniczą rzeką, znajduje się Park Kleciński z placem zabaw dla dzieci. To tam można odnaleźć spokój i ciszę, której tak bardzo brakuje w hałaśliwych rejonach stolicy Dolnego Śląska. Inwestycję wyróżnia ciekawe rozwiązanie, zastosowane we wszystkich lokalach mieszkalnych. W części garażowej wydzielono ponadnormatywne miejsca postojowe, by pomieścić dwa samochody. Nowatorska koncepcja, która umożliwia przejście bezpośrednio do części mieszkalnej to gwarancja tego, że po ciężkim dniu szybko przeniesiemy się do swojej ulubionej, domowej przestrzeni. Niewątpliwą zaletą tej lokalizacji jest jej sąsiedztwo. Dobrze rozwinięta infrastruktura zapewnia bliskość i łatwe dotarcie do sieci MPK. Ale to nie wszystko! W pobliżu mieści się także sporo restauracji, salon fryzjerski, stacja paliw, Auchan, Leroy Merlin czy Aleja Bielany, a miejsc, w których można spędzać czas wolny nadal przybywa. To rozwojowe tereny – atrakcyjne dla inwestorów.
Bez prowizji dla Kupującego oraz podatku od czynności cywilnoprawnych!
Bez prowizji dla Kupującego oraz podatku od czynności cywilnoprawnych!